RESIDENCIAL
COMERCIAL
Qu mobiliario
Contacto
RESIDENCIAL
COMERCIAL
Qu mobiliario
Contacto
ADC Arquitectos

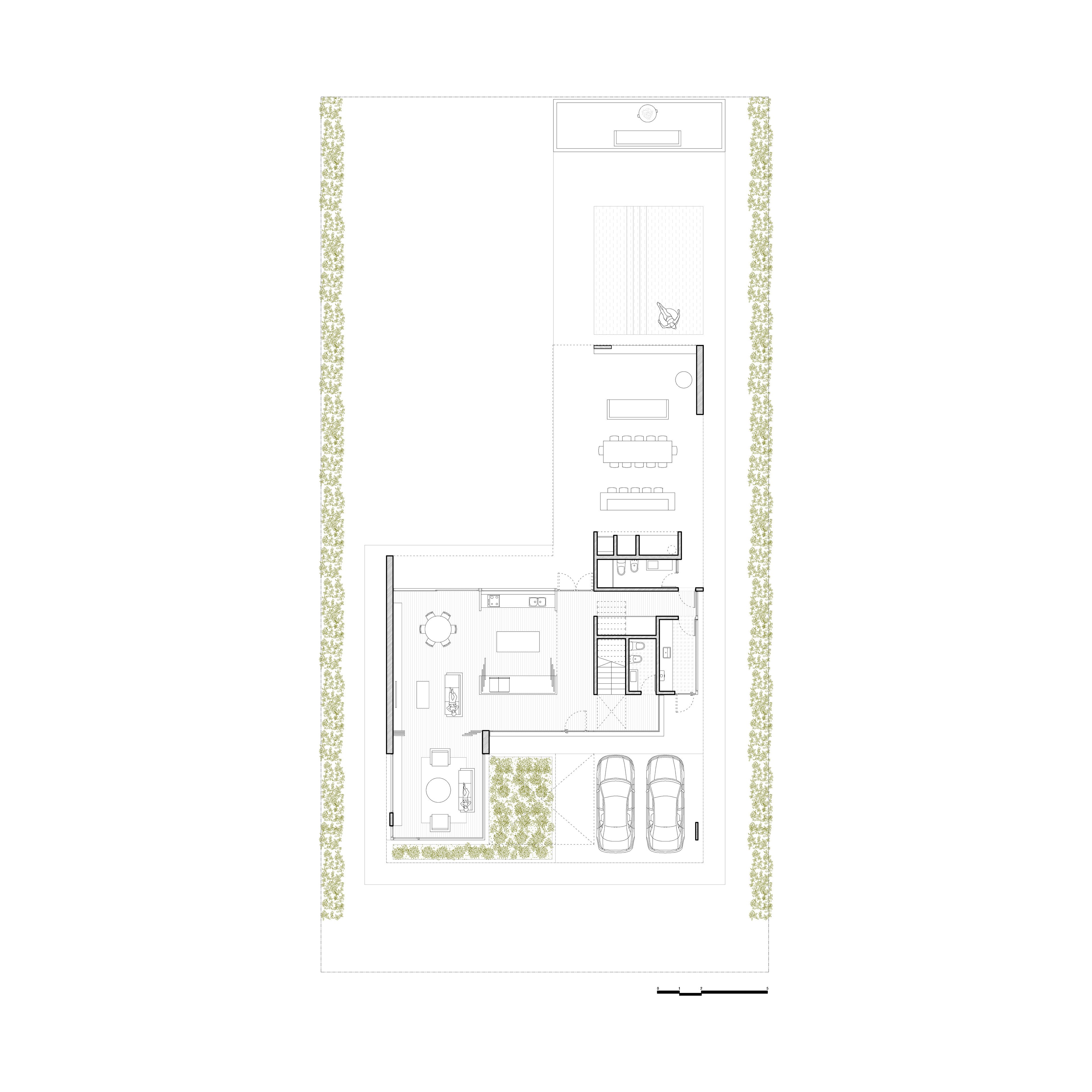
JULI Y HUGO

En ejecución

You may also like

ALONSO
2018
PUERTO PARAÍSO
2019
AMICA
2022
CRIPO
2019
MARU
2021
NACHO
2022
↑Back to Top