RESIDENCIAL
COMERCIAL
Qu mobiliario
Contacto
RESIDENCIAL
COMERCIAL
Qu mobiliario
Contacto
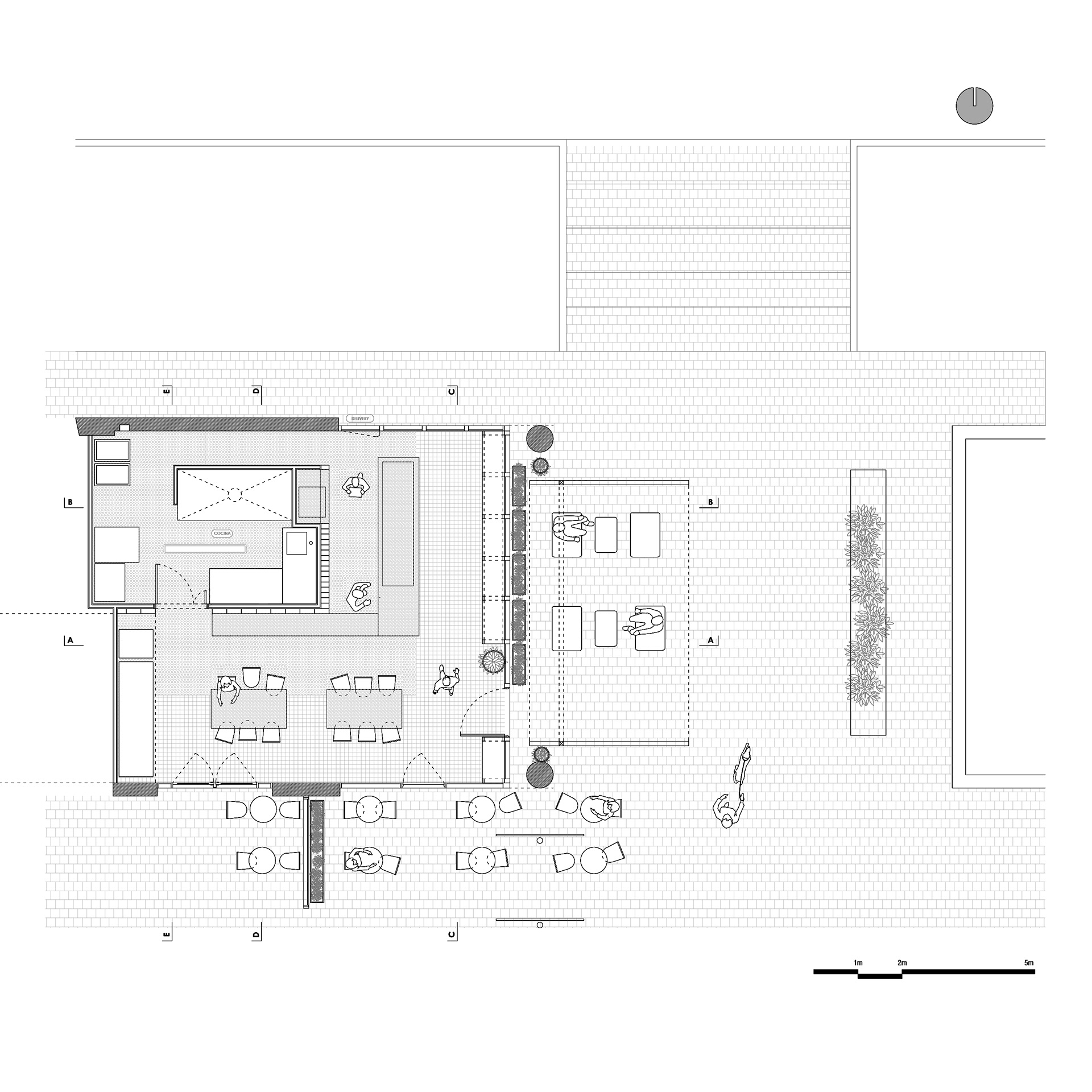
ADC Arquitectos

PANDYS

You may also like

SENS
2023
CHARCO Shopping del Siglo
2022
ALMA Oficinas
2022
AMERICO La Florida
2021
NATO Funes
2022
CHARCO Córdoba
2023
GIRO DIDÁCTICO Oficinas
2022
AMERICO Jujuy
2018
ITALIANI
2023
FONDO
2023
↑Back to Top